【联发·红山新澍】
深圳新规先行范本 · 新青年好房子新物种
红山正芯 | 2.5容积率 | 新青年智慧住区
红山高定生活中央区|名校环绕|唯此低密
红山以“北站商务中心+中央居住区”双重定位,聚合龙华一半以上的高端资源和配套。红山新澍坐享红山正芯最后一片宜居净土,从此难再有!
龙华实验学校,华东师范大学附属深圳龙华学校等龙华TOP级学校环伺,12年精品教育一步到位!
深圳2025年新规首发项目!区域唯一2.5超低容积率住区,舒适宜居好房子先锋范本!

联发集团 为新青年造好房子
特区脊梁 稳健国企:世界500强建发旗下核心企业,连续19年上榜中国房企百强,屡获中国建设?程鲁班奖、中国建筑?程钢结构?奖等
联发新澍 湾区首秀:同频国家战略,为新青年定制好房子,提供全场景生活方式解决方案
百强物业 品质服务:联发物业国际金钥匙联盟成员之一,全国首创前置管家服务「温情九度」服务
相关数据来源:联发集团官网

联发·红山新澍 深圳好房子新物种
!新规首发 低密舒居新物种 !
深圳新规地块,2.5低密住区:区域最低容积率地块,低密度=居住高舒适度,以别墅级的标准提升居住品质感
80m限高,舒适度TOP级:区别于同板块或深圳楼市的超高层,享受更安静的环境、更充足的采光和私密性
拒绝前盘大户,享受纯粹品质:?回迁房、?保障房,居住人群更纯粹,舒适氛围佳

!高拓展使用空间 品质人居新物种 !
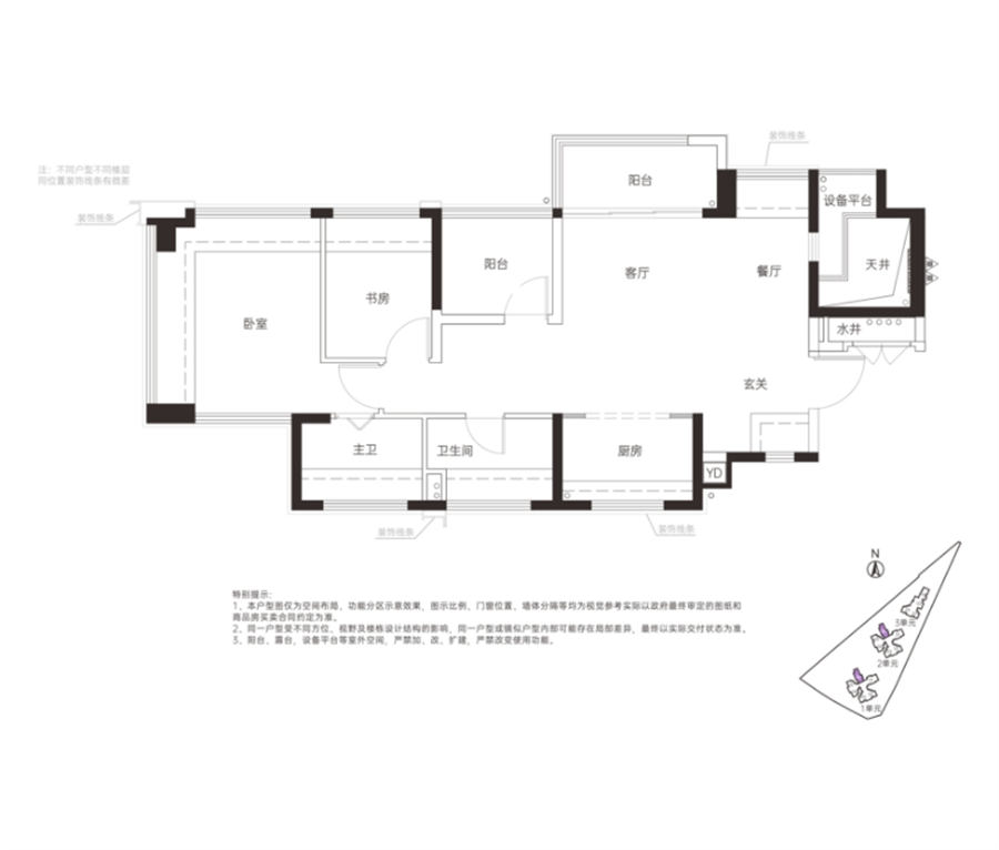
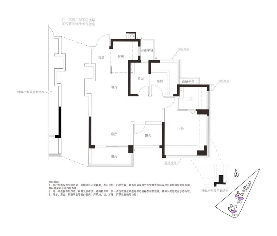
新规产品,高使用率,建面约69-99㎡灵动居住空间,以LDKG+X空间自由组装空间模块,适配家庭的每一次成长需求。
超级收纳管家,小家越住越大:玄关收纳/厨卫收纳,打开家的隐藏魔法
10w+豪宅配置,精装一步到位:日立中央空调,科勒卫浴,方太厨房全配

!科技buff 智慧社区新物种 !
联发与华为深度合作,搭载New Life OS智慧社区系统&华为鸿蒙智家,实现从社区到住宅的全场景智慧体验。
New Life OS智慧社区系统
①人脸识别,无感通行,门、电梯一步到位
②车辆自动识别,无感通行,追光迎接归家
③天使之眼实时全链路追踪,守护儿童安全
④多场景AI监测,保障全域社区安全
⑤智能传感告警系统,自动联动居家安全

华为鸿蒙智家系统
①智能中控+智能门锁+APP,一键即享
②与2800个品牌,7700+智能产品无界联动,构建超级终端
③特色加载包,切换多元主题场景、氛围
④随着居住使用持续进化,贴心适配每处细节

联发·红山新澍以友友+社群&超级APP,构建线上/下联动的一站式社群生活服务,覆盖兴趣链接、资源共享、社群活动、主理人权益。
4大共享空间,美好楼下见:学习/办公盒子、便民盒子、健身盒子、多功能盒子(交付后)
特色商业街区,新青年新享法:龙华首个“开放即开业”的商业空间
共建兴趣社群,组建兴趣搭子:全龄化兴趣活动体验,同频相遇
共创资源平台,合作共赢圈子:多元资源联盟,将社群圈升级为人脉圈

红山正芯 新青年醇熟生长地
数字龙华,都市核?区,新青年活力创新之城
密集交轨路网,高品质配套,新青年高效生活之城
红山第一豪宅住区(龙华地王金茂府,中央原著,莱蒙水榭豪宅区),新青年品质置业之城

新青年出行外挂:4线通勤,2站深圳北
4号线(上塘站)/6号线(上芬站),2站直达深圳北站并可1站直达香港西九龙
33号线(在建中),预计2026年通车,4站速达宝安国际机场
22/27号线(在建中),高效连接香蜜湖与前海
(数据来源:百度地图&探圳龙华微信公众号)

新青年能量磁场:5馆1体人文圈,灵感策源地
新时代十大文化设施:深圳市美术馆新馆、深圳图书馆北馆
城市级文艺馆:深圳文化馆新馆(在建中)、展览馆、演艺馆(开心麻花剧场)
十五全运会场馆:简上体育综合体

新青年潮流秀场:200万方醇熟商业轻松逛
潮奢商场:壹方天地、龙华万象城(在建中)、龙华天虹购物中心
Chill 烟火:红山6976商业中心、COCO City
地标旗舰:华南首家Costco旗舰店、山姆会员店

新青年教育主场:12年菁英教育,学霸成长路
优质小学:华东师范大学附属深圳龙华学校教育集团未来小学等
名师中学:华东师范大学附属深圳龙华学校、龙华实验学校教育集团至美校区(九年一贯制)、深圳高级中学北校区(初中部)、龙华区教育科学研究院附属实验学校(初中部)

新青年公园疗愈:5大公园为邻,户外说走就走
红木山郊野公园/阳台山森林公园/北站中心公园/龙华绿廊公园/深圳德逸公园












【免责声明】
本项目推广名为“联发·红山新澍”,地名办核准名/备案名为“联发·红山新澍雅居”;开发公司为:“深圳联粤房地产开发有限公司”;
本资料为要约邀请,不作为要约或承诺;买卖双方的权利义务以双方签订的《商品房买卖合同》及其补充协议、附件等书面文件为准;
本资料对项目周边幼儿园、学校等教育配套资源的介绍,旨在提供相关信息,并不意味着出卖人对就学安排作出任何承诺,最终的学校规划及入学政策以政府教育主管部门及校方颁布的最新政策为准;
本资料对周边环境交通、商业及其他配套设施的介绍,旨在提供相关信息,并不意味着出卖人对此做出承诺,相关内容不排除因政府规划、政策规定及出卖人未能控制等原因发生变化,地块信息来源:中国财经网:http://finance.china.com.cn/house/20250620/6250985.shtml。
参与活动的即视为同意活动组织者将活动照片用于各项业务、媒体推广及活动宣传,如有异议者请于活动前提出;具体活动内容详询本项目营销中心,在法律允许的范围内,本公司保留对本活动的修改和解释的权利,敬请留意最新资料;
本资料所发布的内容为2025年12月25日之前的信息,在法律允许的范围内保留对本资料修改的权利,敬请留意最新资料。